Getaway #455 For Sale - $149,900
Limited Time Launch Pricing!
Getaway Features
Kitchen
- Tan cabinets
- White countertops
- Stainless steel appliances
- Double sink
 Interior
- Tall ceilings
- Ample storage
- Breakfast nook
- Washer/dryer hookups
Misc.
- Mirrored bedroom closet
- Clerestory windows
- Built-in bedroom storage
- Covered front porch
Getaway Video
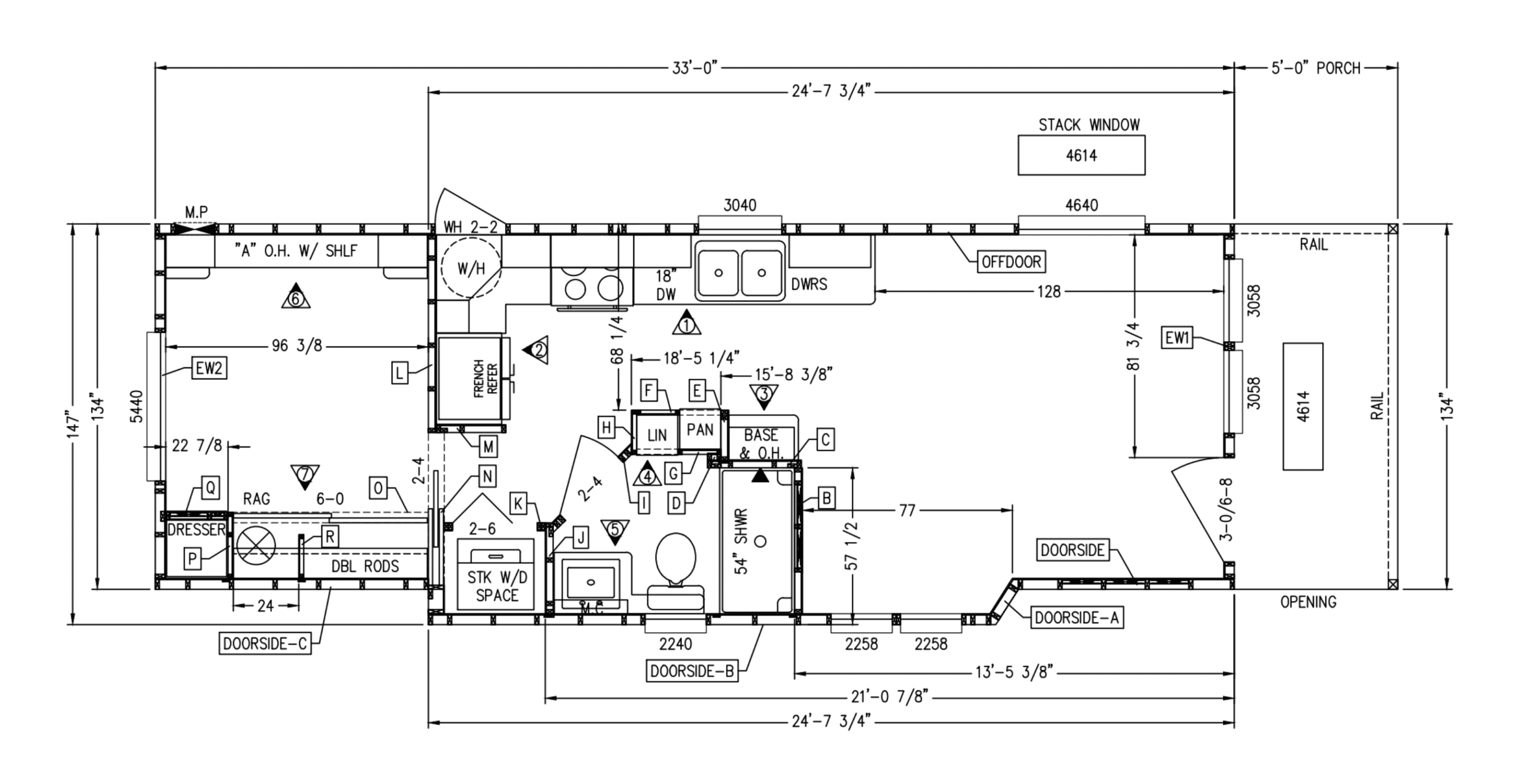
Floor Plan
Getaway Delivery Photos
